Cải tạo nội thất căn hộ 58m² – Giải pháp thiết kế thông minh và tiết kiệm cho không gian nhỏ
Thông tin dự án
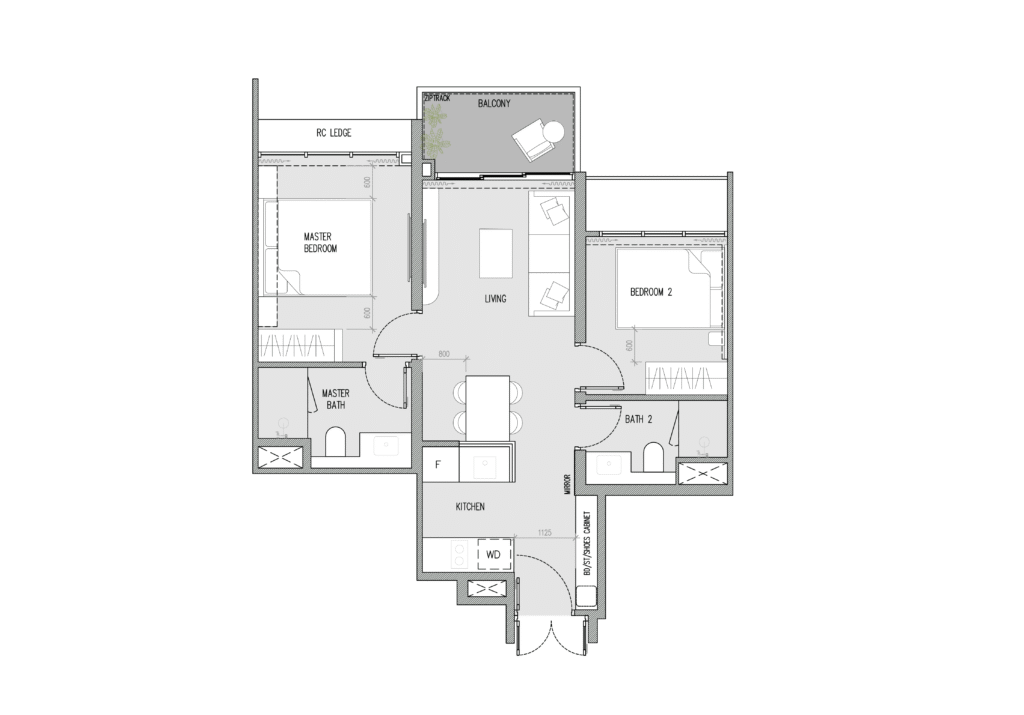
Diện tích: 58m²
Số phòng: 2 phòng ngủ, 2 phòng vệ sinh
Yêu cầu: Giữ lại các hạng mục nội thất cơ bản từ chủ đầu tư như tủ bếp, sàn gạch, tủ quần áo có sẵn.
Thiết kế & cải tạo: Okkovn Studio
Phong cách: Đương đại (Contemporary)
Giải pháp thiết kế cải tạo nội thất căn hộ 58m2

Với bài toán cải tạo một căn hộ diện tích khiêm tốn nhưng vẫn phải đảm bảo đầy đủ công năng và tính thẩm mỹ, nhóm thiết kế từ Okkovn Studio đã lựa chọn tiếp cận theo hướng tối giản can thiệp vào kết cấu sẵn có, đồng thời tập trung vào việc gia tăng không gian lưu trữ và nâng cao trải nghiệm sống cho gia chủ.
Toàn bộ giải pháp được triển khai với mục tiêu giữ lại phần hiện trạng có sẵn từ chủ đầu tư, bao gồm hệ tủ bếp, sàn gạch, tủ quần áo… và tối ưu hoá từ chính những nền tảng này. Việc “thiết kế trong giới hạn” chính là điểm thử thách lớn nhất, đồng thời cũng là yếu tố tạo nên cá tính và chiều sâu cho không gian.
Bên cạnh đó, việc lựa chọn phong cách thiết kế Đương đại (Contemporary) cũng đem tới sự hiện đại cho không gian sống tối giản của căn hộ.
Không gian sinh hoạt chung

Phòng khách – bếp – bàn ăn được kết nối liền mạch trong một tổng thể gọn gàng và ấm cúng. Chúng tôi đã thiết kế lại hệ vách TV tích hợp tủ lưu trữ âm tường, sử dụng vật liệu gỗ veneer phối kết cùng đá nhân tạo nhấn nhẹ bề mặt, nhằm tạo nên cảm giác nhẹ nhàng nhưng vẫn hiện đại. Ánh sáng gián tiếp từ đèn LED âm tạo chiều sâu, đồng thời làm nổi bật các lớp vật liệu.

Bàn ăn được bố trí gần khu vực bếp với cụm đèn treo trang trí hiện đại, đóng vai trò vừa là điểm nhấn thẩm mỹ, vừa đảm bảo ánh sáng sử dụng thực tế. Bộ ghế ăn đa dạng màu sắc trung tính được phối chọn theo tinh thần đương đại, tạo nên sự tương phản vừa đủ và không gian gần gũi.
Tối ưu không gian lưu trữ

Với diện tích nhỏ, nhu cầu lưu trữ luôn là ưu tiên hàng đầu. Các hạng mục mới được bổ sung đều hướng đến chức năng này:
•Tủ vách tivi: thiết kế full cao trần, tận dụng triệt để chiều cao căn hộ.
•Tủ giày lối vào: thiết kế full tường với nhiều ngăn đa năng, đồng thời tích hợp gương đứng giúp không gian mở rộng về mặt thị giác.

•Tủ đầu giường: thêm ngăn lưu trữ kín, vẫn giữ được sự tinh gọn và đồng nhất tổng thể.
Chiếu sáng & cảm xúc không gian

Hệ thống chiếu sáng nguyên bản từ chủ đầu tư được nâng cấp có chọn lọc. Chúng tôi bố trí thêm các dải đèn LED âm trần và hắt vách với ánh sáng ấm, kết hợp đèn rọi ray nhỏ giúp tạo lớp ánh sáng đa tầng, từ đó tăng cường chiều sâu thị giác và làm nổi bật các vật liệu.
Ánh sáng không chỉ phục vụ công năng mà còn đóng vai trò điều phối cảm xúc: sự chuyển tiếp giữa vùng sáng – tối mang lại cảm giác thư giãn, riêng tư và ấm cúng – điều thường thiếu trong các căn hộ diện tích nhỏ.
Ngôn ngữ vật liệu & phong cách tổng thể

Toàn bộ thiết kế được phát triển trên nền tảng phong cách đương đại (contemporary), trong đó vật liệu, màu sắc và đường nét đều được lựa chọn sao cho hài hoà với nội thất sẵn có. Gỗ màu nâu trung tính, đá vân mây và ánh sáng vàng ấm cùng nhau tạo nên một không gian sống mềm mại, cân bằng và dễ chịu.
Không có sự đập phá hay thay đổi kết cấu lớn, mọi cải tạo đều tập trung vào việc “tôn trọng hiện trạng – nâng cấp giá trị”, từ đó mang lại một diện mạo mới cho căn hộ mà không đánh mất tinh thần ban đầu.
Đối với Okko Studio
Dự án cải tạo nội thất căn hộ 58m² là minh chứng cho cách tiếp cận tinh tế và tiết chế trong thiết kế nội thất – nơi mà giới hạn về không gian hay vật liệu không phải là trở ngại, mà chính là chất liệu để sáng tạo nên một tổ ấm mới: gọn gàng hơn, tiện nghi hơn và giàu cảm xúc hơn.

Nếu bạn đang tìm một công ty thiết kế nội thất nhà chuyên nghiệp tại Long Hải, Hồ Chí Minh và khu vực Hồ Tràm, (Bà Rịa Vũng Tàu cũ). Hãy liên hệ với đội ngũ Okko Việt Nam Studio để được tư vấn.
Với một đội ngũ thiết kế có nhiều kinh nghiệm trong các dự án từ nhà dân dụng, quán cà phê, showroom, cửa hàng, hay cả những kiot trà sữa take away, Okko Việt Nam Studio vẫn luôn đem đến các giải pháp vừa đảm bảo công năng, vừa tiết kiệm chi phí xây dựng, nhưng cũng hợp thời đại.
Bên cạnh đó Okko Việt Nam Studio đang là đối tác thiết kế của các đơn vị thi công hàng đầu:
- Khang Dien – đơn vị thi công quán cà phê, nhà hàng thịt nướng cho chuỗi Phê La, Gogi
- Lotus Project – đơn vị thi công showroom, cửa hàng thời trang
📞 Liên hệ ngay Okko ngay để được tư vấn thiết kế nội thất nhà, căn hộ, quán cà phê, cửa hàng : 0976.909.474
⚠️ Bạn không nên bỏ qua: Thiết kế nội thất tiết kiệm từ Okko Studio: Bí kiếp 5 Không – 5 Có giúp nhà bạn đẹp & chất
Đăng ký tư vấn thiết kế nội thất cho dự án của bạn?
– Comment nhu cầu/diện tích/căn hộ, hoặc để lại thông tin tại đây
📚 Bạn có thể tham khảo thêm:
⭐ Dựa án
- Căn hộ gia đình 80m² theo phong cách thiết kế Japandi
- Dự Án Thiết Kế Căn hộ 116m² – Không gian sống phong cách đương đại cho gia đình ba thế hệ
- Cải tạo nội thất căn hộ 58m² – Giải pháp thiết kế thông minh và tiết kiệm cho không gian nhỏ
⭐ Tổng quan về



[…] Cải tạo nội thất căn hộ 58m² – Giải pháp thiết kế thông minh và tiết kiệm… […]
[…] tiết kiệm chi phí từ công ty thiết kế nội thất Okko Studio giúp gia chủ của căn hộ 58m2 sau đây chủ động ngân sách, kiểm soát chất lượng, tránh lãng phí ngoài ý […]