Dự Án Thiết Kế Căn hộ 116m² – Không gian sống phong cách đương đại cho gia đình ba thế hệ
Thông tin dự án
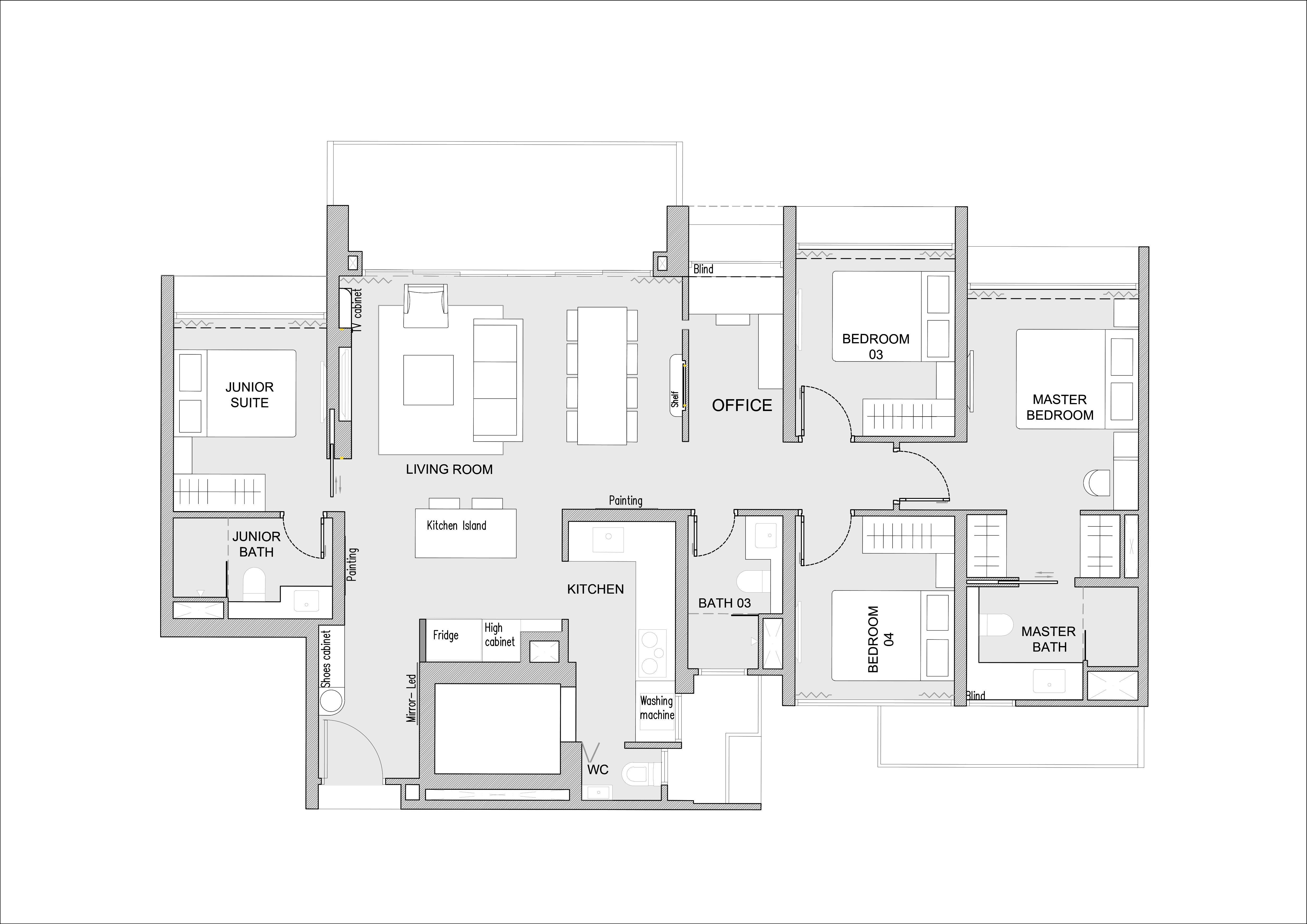
- Diện tích: 116m²
- Số phòng: 4 phòng ngủ, 4 phòng tắm, 1 phòng làm việc
- Phong cách: Contemporary (Đương đại)
- Đơn vị thiết kế: Okkovn Studio
- Nhiệm vụ: Thiết kế nội thất trọn gói cho không gian sống đa thế hệ

Màu sắc – Sự tương phản tinh tế tạo điểm nhấn thị giác
Khi lần đầu gặp gỡ khách hàng, Okko nhận ra gia chủ rất quan tâm đến màu sắc. Chính vì vậy, việc lựa chọn bảng màu chủ đạo cho căn hộ là điều đầu tiên Okko Studio muốn gửi đến bạn đọc trong dự án này.
Bảng màu chủ đạo của căn hộ là sự kết hợp giữa các tông trung tính nền nã như xám đá, be sáng và trắng kem – làm nền cho các điểm nhấn nội thất đậm màu như nâu gỗ, đen nhám hay đỏ rượu. Sự đối lập có chủ đích này giúp tăng chiều sâu thị giác, đồng thời mang lại cảm giác sang trọng mà không cần phô trương. Các mảng tường đá marble trắng vân mây kết hợp với hệ gỗ veneer nâu sậm tạo nên lớp nền vật lý vừa thanh lịch vừa vững chãi.

Vật liệu – Đa dạng hóa bề mặt, tôn vinh chất cảm hiện đại
Sử dụng linh hoạt nhiều loại vật liệu mới như đá kỹ thuật vân marble, laminate chống trầy, gỗ kỹ thuật, kính phản quang và kim loại mạ đen nhám là những yếu tố mới mà Okko Studio Viet Nam muốn đưa vào.
Sự đan xen giữa bề mặt nhẵn bóng – thô mộc – mờ lì không chỉ tạo nên sự cân bằng về thị giác mà còn mang lại trải nghiệm xúc giác phong phú. Từ không gian bếp với mặt đá đen vân tự nhiên, đến phòng ngủ với các mảng ốp gỗ chạy dọc trần – tường – tủ, tất cả đều được lựa chọn và thi công chỉnh chu từ Okko Studio.


Bố trí không gian – Tối ưu ánh sáng và kết nối nội thất
Căn hộ là gia đình với bố mẹ và 2 con, vì vậy bài toán bố trí không gian để tối ưu công năng cũng như nhận được tối đa nguồn sáng tự nhiên cũng là một bài toán được đặt lên hàng đầu.
Mặt bằng căn hộ được Okko Studio tổ chức hợp lý để khai thác tối đa nguồn sáng tự nhiên. Khu vực sinh hoạt chung (phòng khách – bếp – ăn) được thiết kế theo layout mở, loại bỏ các vách ngăn cứng, tạo dòng chảy không gian liền mạch. Các phòng ngủ đều được bố trí tiếp xúc trực tiếp với cửa sổ lớn, mang lại sự thông thoáng. Riêng khu vực làm việc (office) sử dụng vách gỗ bán mở giúp vừa giữ được tính riêng tư, vừa không cản trở ánh sáng và tầm nhìn.


Trang trí – Thẩm mỹ hoàn chỉnh với sự tư vấn đồng hành
Từ tổng thể đến chi tiết, không gian được định hình rõ nét với sự đồng hành của đội ngũ thiết kế Okko Studio trong mọi khâu: lựa chọn tranh treo tường, đèn trang trí, rèm cửa, vật dụng décor, cho đến bố cục sắp đặt từng vật thể. Mỗi chi tiết đều mang tính nghệ thuật và cân bằng với không gian xung quanh.
Một gợi ý từ Okko Studio đối với không gian sống theo phong cách đương đại:
Những bức tranh trừu tượng, đèn thả nghệ thuật hay các chậu cây nhỏ được chọn lọc không chỉ làm điểm nhấn, mà còn giúp cân bằng tinh thần và cảm xúc cho người sử dụng.
Bạn có thể đọc thêm:
- 5 Bước Chọn Rèm Cửa Chống Nắng Hiệu Quả Trong Thiết Kế Căn Hộ Thông Minh
- Tâm Lý Học Màu Sắc Trong Thiết Kế Nhà Bếp Thông Minh

Đối với Okko Studio
Dự án thiết kế nội thất căn hộ phong cách đương đại 116m² không chỉ là giải pháp thẩm mỹ, mà còn là lời giải cho bài toán công năng của một gia đình ba thế hệ cùng chung sống. Thiết kế hướng đến sự thoải mái, tiện nghi và linh hoạt – với triết lý “tối giản hóa phức tạp” trong xử lý không gian và vật liệu. Đây là một công trình điển hình cho xu hướng sống đương đại: cởi mở, sâu sắc và tràn đầy cảm hứng cá nhân.

Nếu bạn đang tìm một công ty thiết kế nội thất chuyên nghiệp tại Long Hải, Hồ Chí Minh và khu vực Hồ Tràm, Bà Rịa Vũng Tàu. Hãy liên hệ với đội ngũ Okko Việt Nam Studio để được tư vấn. Với một đội ngũ thiết kế có nhiều kinh nghiệm trong các dự án từ nhà dân dụng, quán cà phê, showroom, cửa hàng, hay cả những kiot trà sữa take away, Okko Việt Nam Studio vẫn luôn đem đến các giải pháp vừa đảm bảo công năng, vừa tiết kiệm chi phí xây dựng, nhưng cũng hợp thời đại.
Bên cạnh đó Okko Việt Nam Studio đang là đối tác thiết kế của các đơn vị thi công hàng đầu:
- Khang Dien – đơn vị thi công quán cà phê, nhà hàng thịt nướng cho chuỗi Phê La, Gogi
- Lotus Project – đơn vị thi công showroom, cửa hàng thời trang
📞 Liên hệ ngay Okko ngay để được tư vấn : 0976.909.474
⚠️ Bạn không nên bỏ qua: Thiết kế nội thất tiết kiệm từ Okko Studio: Bí kiếp 5 Không – 5 Có giúp nhà bạn đẹp & chất
Đăng ký tư vấn thiết kế nội thất cho dự án của bạn?
– Comment nhu cầu/diện tích/căn hộ, hoặc để lại thông tin tại đây
📚 Bạn có thể tham khảo thêm:
⭐ Dựa án
- Căn hộ gia đình 80m² theo phong cách thiết kế Japandi
- Dự Án Thiết Kế Căn hộ 116m² – Không gian sống phong cách đương đại cho gia đình ba thế hệ
- Cải tạo nội thất căn hộ 58m² – Giải pháp thiết kế thông minh và tiết kiệm cho không gian nhỏ
⭐ Tổng quan về
- Phong Cách Thiết Kế Đương Đại: Trào Lưu Thập Kỷ Mới Tại Việt Nam
- Thiết kế nội thất tiết kiệm từ Okko Studio: Bí kíp 5 Không – 5 Có giúp nhà bạn đẹp & chất
- Top 5 công ty thiết kế nội thất tại Bà Rịa Vũng Tàu





















